227-unit Solo Cup redevelopment a done deal
The future of one of Lake County’s most prized redevelopment opportunities is now set as officials gave the green light to “the largest project Highland Park has seen in generations.”
Councilmembers during their Feb. 9 meeting unanimously approved five total ordinances and resolutions, and two associated amendments, that put their final stamp of approval on a massive residential development on the former Solo Cup property.
Previous attempts to develop the land include a 500-unit residential development in 2018 and an industrial center with 300,000 square feet of warehouse and distribution space in 2023. Both plans fell flat with city officials and residents.
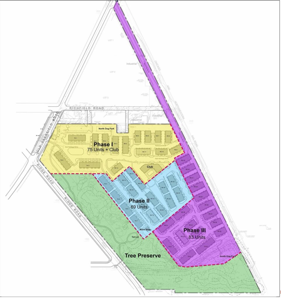
As previously reported by The Record, the proposal from The Habitat Company rezones approximately 28 acres of land at 1660-1700 Deerfield Road from industrial to residential to make way for a 227-unit townhome community.
The Habitat Company, a Chicago-based developer working on behalf of Red Cup Land Company, plans to begin construction of the development this spring on an 18- to 24-month time line.
The residential units will be spread across 48 building assemblies, according to the approved project plans. Parking will be provided in first-floor garages and through on-street availability.
Internal private roads, nearly 13 acres of open space and a clubhouse featuring a pool are also included in approved plans. Additionally, 34 of the units in the project will be reserved for the area’s median income as part of the city’s Inclusionary Housing Plan.
“I want to thank the neighbors, I want to thank the (Plan and Design Commission), I want to thank city staff and I want to thank my council colleagues and everybody who came out,” Mayor Nancy Rotering said following the council’s approval. “They say that a city growing is a city progressing, and I look forward to meeting our new neighbors.”
Amendments target lingering concerns
Although the project received the necessary council’s blessing, the council’s reception was not a total outpouring of support.
The approval came with two amendments that were added with the hope of easing concerns brought forward by both officials and multiple members of the public.
One aspect of the development that received detailed discussion Monday night was a proposed pedestrian crossing planned for the north leg of Ridge Road at Devonshire Court.

Addressing the council on Monday, several Highland Park residents who live near the now-approved project called the crosswalk “dangerous.”
Rick Bolnick, who lives on Devonshire Court, expressed great concern about the proposed sidewalk and called it a “very serious safety issue.”
Lindsey Lurie, who also lives on Devonshire, told the council that removing the proposed crosswalk would “prioritize safety while still allowing the development to move forward.”
“Our community welcomes responsible development,” Lurie said. “Growth can be positive but the details matter, especially for the residents who live closest and will live with the consequences every day.”
“Those of us who live here aren’t asking for much: careful consideration and collaboration before a permanent decision is made,” Lurie later continued, adding “that thoughtful choices now will prevent regret later.”
As part of its approval, the council included an amendment that removed the crosswalk and pushed the requirement to include it to a future determination made by the city at the time of 90% occupancy in the development.
During comments made before their final vote, councilmembers Andrés Tapia, Annette Lidawer and Jon Center also all shared concerns about the impact the development might have on the nearby restaurant Bluegrass.
Lidawer specifically petitioned to increase the buffer between the eatery and the back of parking lot that’s part of the development. The proposed buffer stood at 2 1/2 feet and Lidawer pushed to make that 5 feet.
The second included amendment requested that the developer work in a larger buffer, if possible.
Project planners as an added benefit to the city also included $25,000 “to cover any unknown or unforeseen issues” that may come up during the project, City attorney Steve Elrod said.
Those funds, according to Elrod, will go into an escrow account that gives city officials sole discretion if the $25,000 is needed and how to use them.
‘A good project that moves our community forward’
The five present members of City Council each took time before the board’s vote Monday to share their view on one of the largest development projects the city has seen in decades. Their opinions showcased support for the effort while also noting that the end result was not perfect.
Councilmember Barisa Bruckman opened by saying that she believes perfect is the enemy of good, adding that while the project is not flawless, it is good for Highland Park.
“This long vacant Solo Cup site can finally become homes for new families and customers for our local businesses and that’s a step forward,” she said.

“On balance, this is a good project that moves our community forward,” Bruckman later concluded.
Jon Center, the newest member of council, reiterated the previously stated preference to attempt to come up with a “better” solution for Bluegrass while also showing his support.
“I’m really excited for this for the community,” he said. “I think it’s a fantastic project at so many levels, and thanks to everybody who was involved.”
Lidawer prefaced her hesitations by saying she supported the project because it will bring “much-needed housing, open land, affordable units and beautification to our community.”
But she was critical of the final zoning of the development.
Lidawer has regularly argued that the property should be rezoned under the R-7 classification rather than the mixed zoning it received.
The R-7 zoning “would be more conducive to the neighboring residential area,” Lidawer said while also noting that she felt the mixed zoning was not the best way to zone “the most important, last, largest 27-acre parcel of available land in Highland Park that we’ve seen in 30 years.”
Several residents spoke during public comment to laud the efforts and “careful attention” put toward the project by the city.
“Many in the community really appreciate the incredible heavy lifting you have done on time and effort and thoughtfulness,” resident Anne Flanigan Bassi said.
Resident Janet Schwartz thanked the council for its attention to detail.
“I know it’s taken a lot of extra meetings and things get heated and uncomfortable but I think it’s been worth it,” she said.
The Record is a nonprofit, nonpartisan community newsroom that relies on reader support to fuel its independent local journalism.
Become a member of The Record to fund responsible news coverage for your community.
Already a member? You can make a tax-deductible donation at any time.

Martin Carlino
Martin Carlino is a co-founder and the senior editor who assigns and edits The Record stories, while also bylining articles every week. Martin is an experienced and award-winning education reporter who was the editor of The Northbrook Tower.


