Townhome plan for Solo Cup property gains City Council support
The Highland Park City Council has granted preliminary approval of a 227-unit townhome community at the former Solo Cup property, a month after councilmembers got their first look at the plans.
The unanimous approval of the preliminary development plan and preliminary plat of subdivision came during a special meeting of the council on Thursday, Oct. 30.
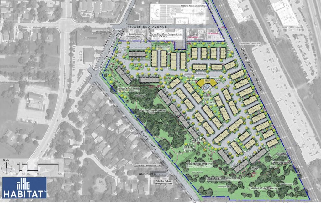
As previously reported by The Record, the proposal from The Habitat Company would rezone approximately 28 acres of land at 1700 Deerfield from industrial to residential in order to make way for the development.
The project would create a 48-building community around a clubhouse and beside nine acres of green space on one of the largest lots of undeveloped land left in the city. Thirty-four of the units would be reserved for the area’s median income as part of the city’s Inclusionary Housing Plan.
Since the council’s discussion on the property at its Sept. 29 meeting, Joel Fontane, the city’s director of community development, said staff and the developers have worked together to address concerns brought up at that meeting.
Changes to the plans include 14 parking spaces for city use, 12 public parking spaces along an access road, and four electric vehicle charging stations.
The west tot lot will also be accessible to the public, as will the community room in the proposed clubhouse.
Fontane added that the developer is currently working on a landscaping plan.

Neighbors reaction
Neighbors of the former Solo Cup property again shared opposition to the plans.
Jim Lederer, owner of Bluegrass Restaurant, which is near the proposed development, expressed a number of concerns, including a lack of both green space and recreation space.
“In the suburbs, we have bocce courts, we have bags, we have different types of recreation,” he said. “I think they’re missing a little bit of that. The existing dog park, playgrounds are positive, but just insufficient as far as what a suburban community would actually need.”
One of the biggest resident concerns is traffic, with many believing that the increase in vehicles going in and out of the development is dangerous.
Longtime resident Leonard Tenen said he’s seen traffic congestion in residential neighborhoods when U.S. Route 41 gets backed up.
“You put a project of this density in place, and that’s just going to compound what is already a very difficult situation,” he said. “So I just want you to be sure you understand the implications of traffic from the standpoint of people who live there, not from the standpoint of a traffic study or numbers.”
Supporters of the development also spoke up. Former Councilmember Daniel Kaufman said the public scrutiny has helped improve the plans.
“We’ve got more green space, more trees, lower density, and other features that have been added,” Kaufman said. “The reality is, because of this community’s input, this plan is much better. This plan is because of the meaningful public input, and with significant concessions from the developer, a much better plan, and that’s really a kudos to the community and everyone that’s been involved in this process.”
Councilmembers praise the plans
Councilmember Barisa Bruckman said the proposal may not be perfect, but it works for the property.
“It’s a far better use of the land that has sat vacant for at least over a decade, from my perspective,” she said. “This is a positive step forward for our community, for new residents, for new families, for new patronage to our local businesses.”
Councilmember Anthony Blumberg acknowledged that the property is a “difficult and complicated piece of property to develop,” but is also supportive of the affordable and medium-income housing that the development is looking to attract.
Councilmember Jon Center, who said he grew up in southwest Highland Park, said he understands the concerns of the neighbors but ultimately believes the development will be a benefit to the city.
“A lot of good things can come out of this,” he said. “I recognize change is hard, I do, but also change can be really positive.”
Rotering said the city has considered multiple uses for the property since 2009, including a community college, a museum, a black box theater, a hydroponic farm and a truck depot.
Responding to neighbors, Rotering said the city will continue to monitor the traffic.
“I hear your concerns. I recognize them,” she said. “We are a group that prioritizes public safety and we will make sure that if there’s an issue with traffic, it will be addressed.”
Councilwoman suggests zoning change
Every councilmember expressed support the updated plan, with many thanking The Habitat Company for adjusting to their feedback.
Councilmember Annette Lidawer said that while she supports the plan, and voted to approve the preliminary design, questioned the split zoning for the proposal.
The proposed zoning puts the development in both the RM1 (“medium-to-high density residential district”) and R7 (“single- and two-family residential district”) zoning districts.
She said even if it took a bit more time, she wanted to explore what it would look like if the entire property were zoned as single- and two-family residential, while also making sure it was clear that the number of units would be capped at 227.
Lidawer attempted to amend the motion to allow for city staff to explore a full rezone, but it received no second.
Lidawer also moved to set a cap of $50,000 for the developer to spend on landscaping, as an attempt to increase the public benefit for the project. Lidawer’s motion failed 4-3 with Rotering and Councilmembers Anthony Blumberg, Barisa Bruckman and Jon Center voting in opposition.
The Record is a nonprofit, nonpartisan community newsroom that relies on reader support to fuel its independent local journalism.
Become a member of The Record to fund responsible news coverage for your community.
Already a member? You can make a tax-deductible donation at any time.
Peter Kaspari
Peter Kaspari is a blogger and a freelance reporter. A 10-year veteran of journalism, he has written for newspapers in both Iowa and Illinois, including spending multiple years covering crime and courts. Most recently, he served as the editor for The Lake Forest Leader. Peter is also a longtime resident of Wilmette and New Trier High School alumnus.


